Denkmalobjekt, Gastronomie, Café, Imbiss, Gewerbeobjekte, Gewerblich & Wohnen, Hotel, Pension, FeWo, RNB, Kapitalanlage, Laden, Markt, Kiosk, Mehrfamilienhaus, Sanierungsobjekt, Wohn- u. Geschäftshäuser, Zinshäuser
1890
641 m2
296 m2
Video
Immobilien Details
Historisches Mehrfamilienhaus in Zeitz am Goethepark
Denkmal, Sanierungsobjekt, teil-Vermietet, Kapitalanlage oder Eigennutzung?
Wohn-& Geschäftshaus im Stadtzentrum von Zeitz, Kapitalanlage mit Denkmal-AfA
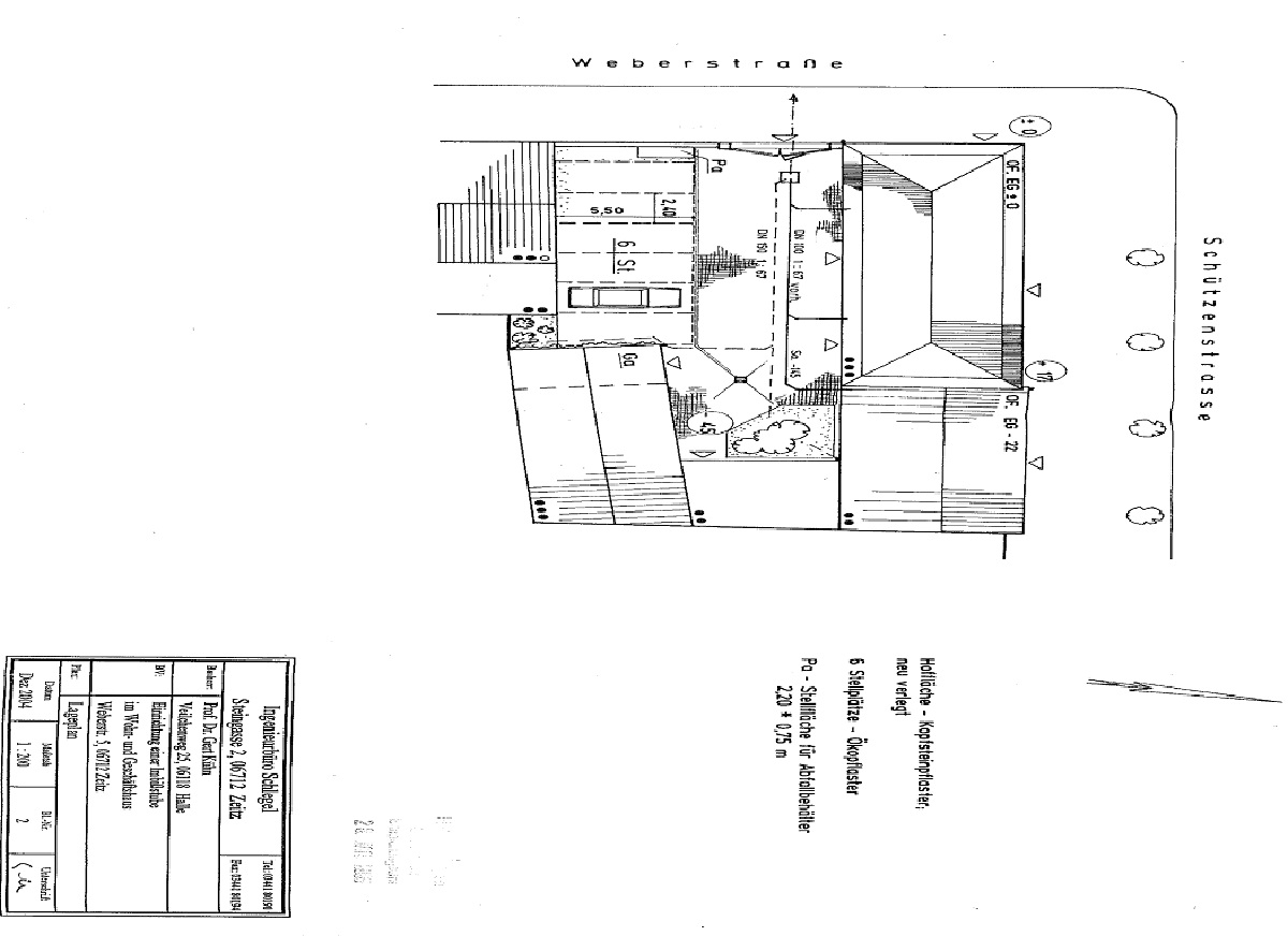
Das wunderschöne denkmalgeschützte Wohn- und Geschäftshaus aus dem 18. bzw. 19. Jahrhundert mit Hof und Lagergebäuden um 1900 befindet sich in der Zeitzer Oberstadt am Scheitelpunkt an der Fußgängerzone zur Altstadt mit Markt und Rathaus und zur Oberstadt mit guter Infrastruktur. Hinter dem Grundstück liegt der Stadtpark (Goethepark). Neben der attraktiven Mieteinnahme bestehen weitere Chancen der Ertragssteigerung. Das bereits mit der
Sanierung begonnene Dachgeschoss (ca. 100 m²) könnte nach Fertigstellung vermietet werden, ebenso die im Hof befindliche Remise mit Werkstatt, Garage und Lagerräumen (ca. 345 m²). Insgesamt allumfassender Sanierungsbedarf.
Das Gebäude bietet viele Nutzungsmöglichkeiten, vom Mehrgenerationen Wohnhaus, über Wohnen & Gewerbe bis zum Renditeobjekt als sog. Zinshaus durch Vermietung, nach Sanierung.
Sie als Investor profitieren von den hohen Steuervorzügen aufgrund der bei diesem Investment einzigartigen Denkmalschutz Sonder-AfA.
ZUSAMMENFASSUNG
PLZ, Stadt: 06712 Zeitz
Bundesland: Sachsen-Anhalt
Objektart: Wohn-u. Geschäftshaus
Denkmal: ja, Sonder-AfA mögl.
Grundstück: 641 m²
Gebäude: 296 m² + 375 m² NG.
Wohnungen: 2 + DG Ausbaureserve
Baujahr: 1800
Service: Hausverwaltung mögl.
Mietertrag (IST)*: 13.620 €/p.a.
Besuchen Sie auch unsere Exposé-Webseite:
