Einkaufszentrum, Bau-u. Fachmarkt, Gesundheitsimmobilie, Gewerbegrundstück, Gewerbeobjekte, Gewerblich & Wohnen, Kapitalanlage, Laden, Markt, Kiosk, Logistik, Spezialimmobilie, Verkaufs- u. Ausstellungsflächen, Zinshäuser
2003
3,975 m2
530 m2
Video
Immobilien Details
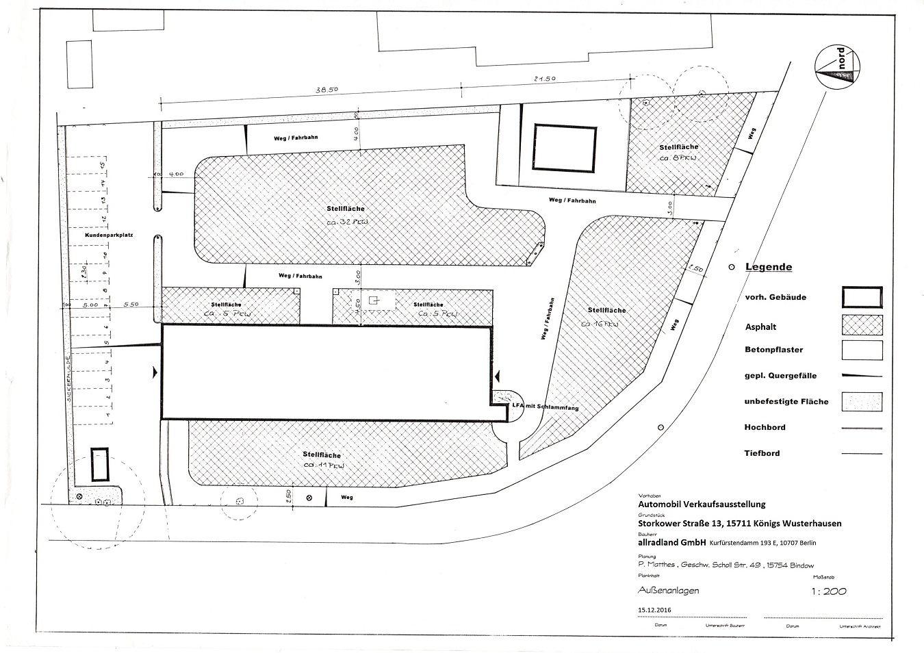
3.975 m² Wohn-& Gewerbe Bauland mit Fachmarkt am S-Bhf. Königs Wusterhausen
Zum Verkauf steht ein 3.975 m² großes Grundstück mit Lage an einer Hauptstraßenkreuzung, nur wenige Gehminuten vom S-u. Fernbahnhof und Busbahnhof Königs Wusterhausen entfernt. Auf dem attraktiven Grundstück bietet sich eine künftige Bebauung, würdig einer Metropole in Flughafennähe der europäischen Hauptstadt Berlin an. Beispielsweise mit einem Hotel, Bahnhofpassage, Geschäften im Erdgeschoss und Wohnnutzung, wie Mikroapartments, in den Obergeschossen. In der Stadt besteht ein großer Bedarf an hochwertigen Wohn- und Gewerbemietraum. In nur einer S-Bahn-Station entfernt befindet sich die technische Fachhochschule Wildau und das Raumfahrtforschungszentrum. Durch die gute Anbindung zum öffentlichen Nahverkehr ist die Lage für am Airport BER und bei TESLA tätige Personen gleichermaßen interessant als für Studenten oder Berufspendler nach Berlin. In nur 2 Gehminuten erreicht man den Stadtwald, dahinter findet man Badeseen, Flüsse und vielfältige Erholungsmöglichkeiten.
DER STANDORT
Zukünftig wird der Standort überdurchschnittlich von der Entwicklung in der Stadt, der Verkehrsanbindung, dem nahen Hauptstadtflughafen und der Nähe zu Berlin profitieren. In der Zeit der Projektentwicklung und Bauplanung bietet sich das Angebot als Kapitalanlage mit attraktiver (IST) Mieteinnahme an.
- Besonders verkehrsgünstige Lage am Bus-/ S- & Regional/Fernbahnhof, nur 1 Haltestelle bis zum Airport BER
- 3 Autobahnanschlüsse, Binnenhafen, naher Eisenbahnanschluss für Gütertransport
- innerhalb der Stadt an frequentierter Hauptstraße
- Stadtwald und Freibad in wenigen Gehminuten erreichbar
- Top Infrastruktur Krankenhaus, Schulen, Gymnasium, Einkaufzentren, Technologiepark
- 25 Fahrminuten bis Berlin / Airport
- Shuttle-Bus Verbindung zum TESLA Werk
ZUSAMMENFASSUNG
PLZ, Stadt: 15711 Königs Wusterhausen
Bundesland: Brandenburg
Gebäude (IST): zirka 500 m²
Grundstück: 3.975 m²
Lage: Innenbereich §34 BauGB
Nutzung: Wohnen & Gewerbe
Erschließung: voll erschlossen
Mietertrag (IST): 108.000 Euro/Jahr
Mögliches Baufeld: zirka 1.590 m²
Mögliche akt. BGF: zirka 5.000 m²
Wir verkaufen auf der gegenüber liegenden Straßenseite ein unbebautes Grundstück, welches aktuell als Verkaufsausstellung genutz wird:
1.635m² Wohn-& Gewerbe Bauland nahe dem S-Bhf. Königs Wusterhausen
